|
The
Apartments Of St. Andrews
 |
1201 Carson Way
Greenwood, Indiana 46143
Office Tel: (317) 882-3144, Fax: (317) 885-8256
Office Hours: Mon. - Fri. 9am-5pm, Saturday
10am-6pm, Sunday 12pm-6pm |
Go
back
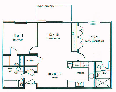
"Traditional"
2 Bedroom, 2 Bath
954 Sq. Feet
$715.00 per mo. |
 |
|